-
WhatsApp:+86-15192742888 -
-
No.719,Dongyue Middle Road,Huangdao District,Qingdao,Shandong,China -

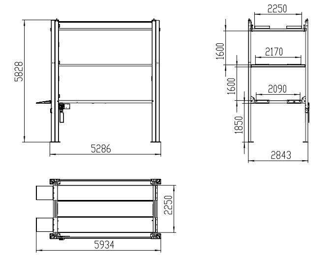
Technical Parameters
Name
FOUR POST PARKING LIFT FOR 4 CARS
Model
FPL603
Lifting capacity
2nd floor- 2500 kg, 3-4 floors -2000kg
Net lifting Height
1st floor1850mm 2-3 floors -1600 mm
Unit External dimensions
5934 *2250*5828 mm
Platforms Width
2090 /2170/ 2250 mm
Runway type
Checkered steel plates
Electric parts
Original Chint
Seals in cylinder
Aston , Italy
Lock release type
Electromagnetic lock release
Middle in the runway
Type of ramp
Foldable ramps
Safety Devices
OLimit protection, multi-stage anti-fall protection measures,
Operation Type
Push buttons on operation box
Power Supply
220-415 V , 50/60 Hz , 1/3 Ph
Motor Capacity
3KW.
Packing size
5900/700/1000mm
Drawings

Qingdao Lanhai Shengyuan Machinery Equipment CO.,LTD is one of China\'s simple parking equipment manufacturer,
committed to provide the most suitable and cost effective parking system solutions to you.
As a manufacturer, we focus on quality and technical innovation. The company has passed the ISO 9001:2008 international quality system certification and the EU compulsory safety certification(CE).